Überbauung Schützenweg Chur

Überbauung Schützenweg Chur

 

Direktauftrag, 2015 - 2016 realisiert

Ausführung zusammen mit Architekturbüro Stefan Wolf, Chur

 

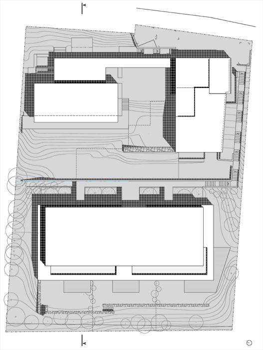
Im Garten einer am Hang liegenden Villa aus den frühen 60er Jahren wurde eine Wohnüberbauung mit Aussicht über Stadt und Berge realisiert.

 

Der bestehende Baukörper wurde mit zwei zusätzlichen Gebäudevolumen ergänzt, die zusammen mit der Villa eine neue Einheit bilden. Es ist gelungen die Massstäblichkeit des Bestandes zu respektieren und gleichzeitig vier mal mehr Wohnfläche als in der bestehenden Villa zu realisieren.

 

Auf der gleichen Geländekante wie die Villa steht das freistehende Einfamilienhaus, dessen drei Geschosse sich in den Hang einbetten. Der Wohn- und Essbreich befindet sich im obersten, Schlafbereich und Bäder im mittleren und Keller und Werkräume im untersten Geschoss.

 

Der Villa vorgelagert, tiefer liegend und in südwestlicher Hanglage liegt ein zweigeschossiger Längskörper mit drei Erdgeschoss- und zwei Attikawohnungen. Die Wohnungseingänge sind über einen hofartigen, teilüberdachten Vorplatz erreichbar, der sich in der Sprache an die Eingangssituation der bestehenden Villa anlehnt. Die Wohnungen zeichnen sich durch grosse, raumhohe Fensterflächen gegen Südwesten aus. Im Erdgeschoss führen interne Treppen in die wohnungseigenen Kellerräume. Die Wohnungen sind mit grosszügigen Aussenrämen ausgestattet.

 

Die Öffnungen der Häuser richten sich gegen das Tal. In Analogie zur alten Villa haben die Häuser ein aus Einsteinmauerwerk erstelltes „Rückgrat“ und eine „offene“ Front in südwestlicher Richtung mit grosszügigem Blick über die Stadt.

 

Für die Parkierung ist auf Erdgeschosshöhe des MFHs eine Garage in den Hang eingebettet. Erschlossen wird sie mittels Autolift. Die Villa und das EFH haben zusätzlich je eine Einzelgarage neben dem Autolift.

 

siehe auch Architekturbüro Stefan Wolf